Polar tillsynsbrunn 400/400 Rakt genomlopp, PP

Utan tätningsring och används normalt med Pragma och dess respektive rörtätningsring.

För övriga kombinationer demonteras tätningar beroende på ansluten rörtyp.

Vid användning av släta rör använd klickring.



Stigarmuff är försedd med förmonterad tätningsring för släta stigarrör.

AMA kod: PDB.22 Tillsynsbrunn av plast



  • RSK-nummer: 2359285
  • Pipelife art.nr: 3496100631

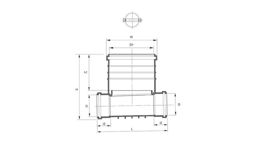
D 400 mm
D1 400 mm
H 839 mm
h1 350 mm
L 806 mm
l2 150 mm
W 461 mm
Nettovikt 19,644
Viktenhet kg

Försäljningsenhet ST
Liten förpackning 1
Stor förpackning 3

EPD miljö- och produktdeklaration
GWP-värde för produktsteg (A1-A3) (totalt) CO2e/kg 3,18 kg CO2 equ/kg
GWP-värde för produktsteg (A1-A3) (totalt) CO2e/kg per enhet 62,416 kg CO2 equ/piece
Standard för beräkning av GWP EN15804:2012 + A2:2019
Verifiering av tredje part (GWP) PhD. Eng. Halina Prejzner, Instytut Techniki Budowlanej

Produkten har klass Accepteras hos Byggvarubedömningen
Produkten är registrerad hos Basta
Uppfyller kraven för Nordic Poly Mark


Kontakta oss

Om du har frågor eller behöver mer information om våra lösningar och rörsystem inom vatten och avlopp eller annat så tveka inte att höra av dig. Vi hjälper gärna till.

Get in Touch

kontaktalternativ

*  Mandatory fields

+46
Nedladdningscenter
Hittade du inte det du letade efter?

Kontakt-<br>personer

Kontakta oss +46 513 221 00

Hel lista över kontaktpersoner

Kom i kontakt med vårt team

Vi kommer att kontakta dig så snart som möjligt via E-post eller telefon

Telefon

Kontaktformulär
Vi kommer att kontakta dig